M101
shop / purchase
75015 Paris 15e / Paris
France / Ile de France
231,000.00 EUR
29.4 m²
20 m²
old building
fair
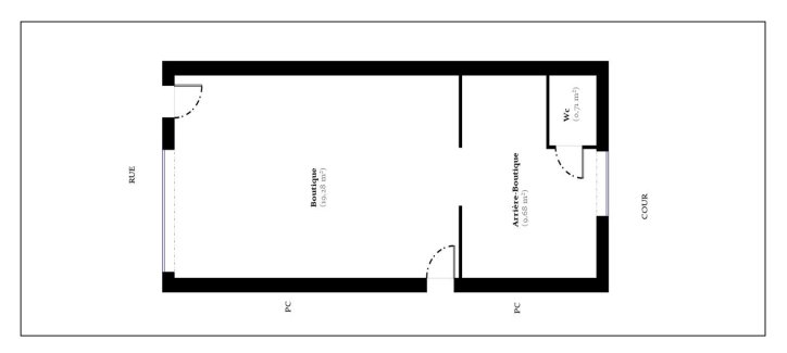
Discover this functional commercial space of 29.42 m² (Loi Carrez) , ideally located on the ground floor in the highly sought-after 15th arrondissement of Paris, in the heart of the Necker district.🏡 Property DescriptionThis practical space, perfectly suited for a boutique, service activity, or office, offers an optimal layout:A bright main sales area of 19.03 m² featuring a street-facing window.A versatile back-shop of 9.68 m² that can serve as storage or office space.An independent restroom (WC) of 0.71 m².Flow-through configuration with direct street access and secondary access via the building's common areas on the courtyard side.🌿 Environment
Benefit from a strategic location in a dynamic Left Bank neighborhood:Located in the heart of a residential area.Immediate surroundings composed of numerous local shops and restaurants.Excellent accessibility via public transport (close to Volontaires and Vaugirard metro stations).✅ Technical HighlightsTotal floor area: 29.67 m².EPC (DPE): Blank (Vierge).GHG (GES): Blank (Vierge).Security: Storefront protected by a metal security grille.Health & Safety: Completed diagnostics confirming the absence of asbestos and termites.Period Charm: Building constructed before 1948.💡 Property Potential
This unit represents an ideal opportunity for a first business venture, a local service, or a secure rental investment in a high-demand Parisian district. Its layout allows for a clear functional separation between the public reception area and the technical or storage space.📌 Additional InformationPrice excluding fees: €220,000.Agency fees: 5% (including tax) charged to the buyer.Type: Shop / Commercial Premises.Location: Necker District (75015).📩 Available immediately. Viewings by appointment.📞 Contact us today for more information!Agent in charge of the sale:Mr. Sylvain Serge Talvan – 06 58 49 85 16 – sylvain@talvans.comTalvan’s International - Paris Real Estate Agency or TALVANS.COMTransaction card: CPI 7501 2018 000 030 535⚠ NON DETENTION DE FONDS - ABSENCE DE GARANTIE FINANCIERE


